Se liknande hus
//= __('edit.floor.plan', 'components') ?>
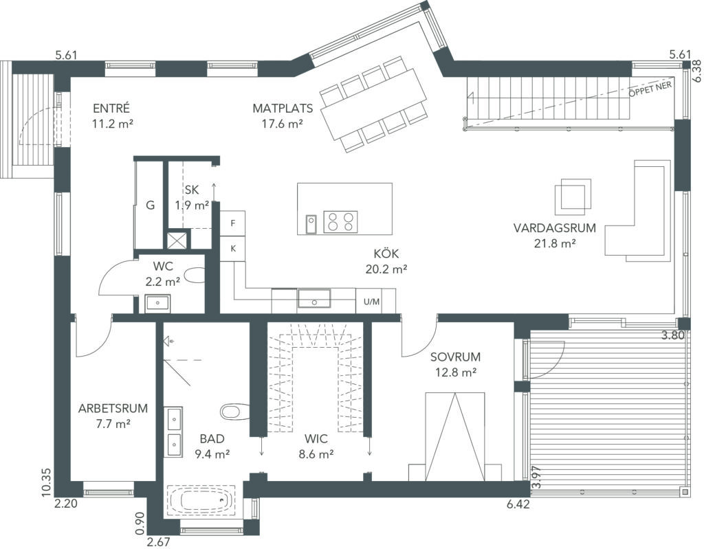
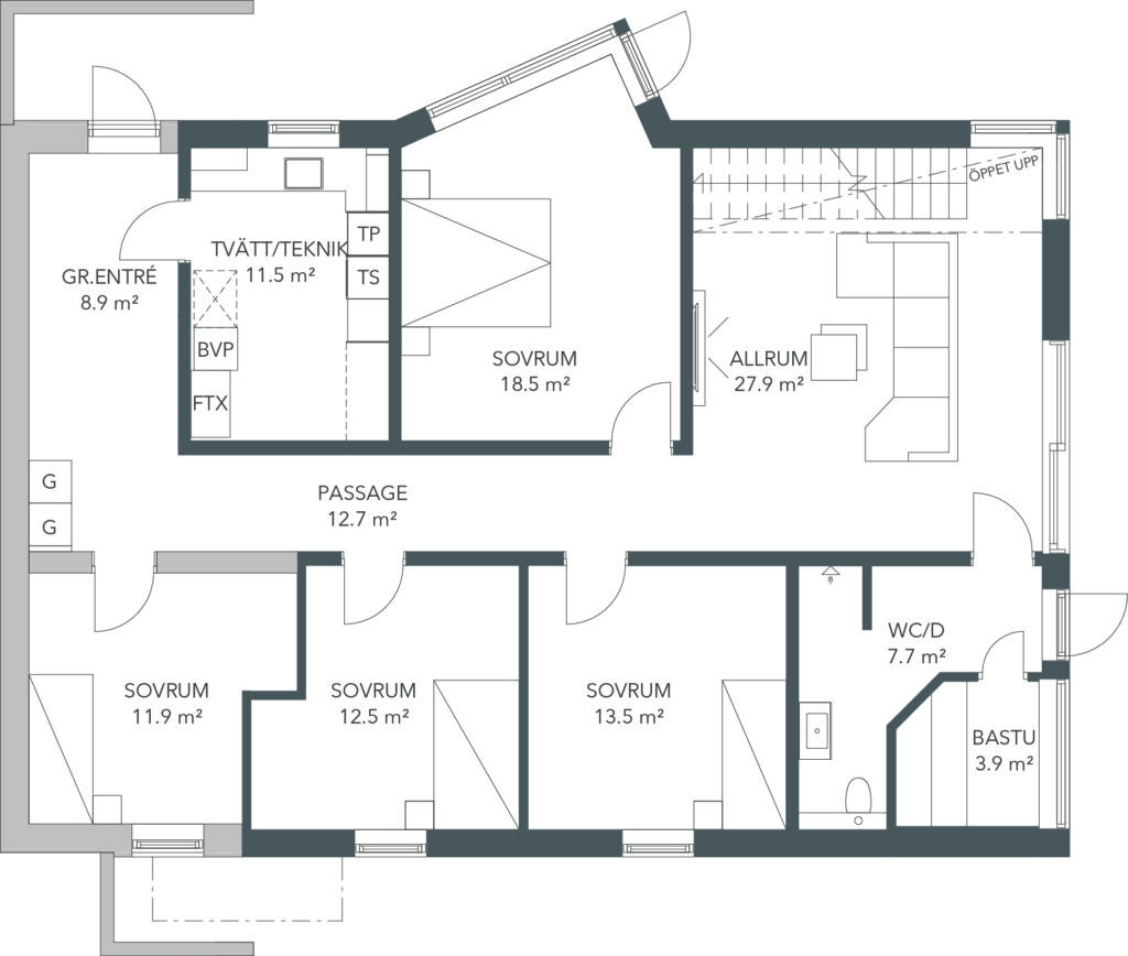
Hus 187
Detta kundhus är inspirerat av husmodellen Nordlys.
| Byggår: | 2022 |
| Invändig yta: | 262.4m² |
| Plan 1: | 124m² |
| Plan 2: | 138.4m² |
| Antal rum: | 8 |
| Varav sovrum: | 4 |